您好!欢迎来到重庆天洁彩钢板有限公司官方网站

重庆天洁彩钢板有限公司

专业生产彩钢净化板、手工板,彩钢岩棉板,机制硅岩板,玻镁板,钢质门、铝型材配件、风淋室等
24小时服务热线
023-46251586
          新闻动态
         最新新闻

重庆天洁彩钢板有限公司

联系人:徐先生

电话:023-46251586

手机:13883831016

传真:023-46251586

地址:重庆市荣昌区博耐特工业园B区,坐落于成渝地区双城经济圈内

         联系我们
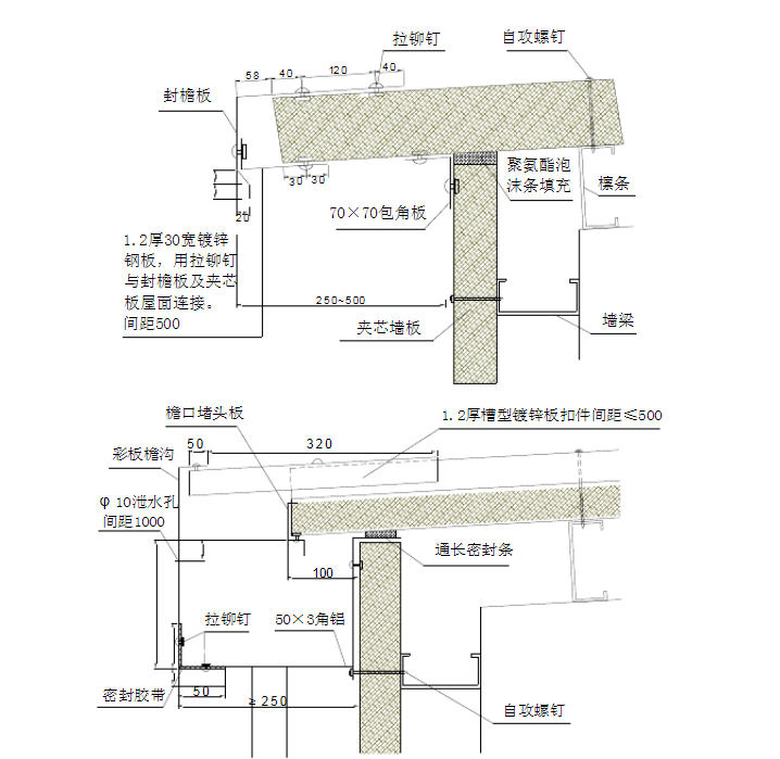
夹芯板屋面施工图纸
来源: | 作者:重庆彩钢夹芯板 | 发布时间: 2020-07-28 | 485 次浏览 | 🔊 点击朗读正文 ❚❚ | 分享到:
注:
1.彩板檐沟配套使用的雨水管应为彩板或PVC材质。 
2.檐沟断面、雨水管直径及间距按工程设计。 

分享到:
当前位置: